Croisette 6
Projet: Restauration des façades, adaptation des fenêtres, aménagement des combles, réfection des installations CVSE
Propriétaire et Maître de l'ouvrage: CPEG
Architecte et Direction des travaux: Féroé Architectes SA
Mandataires: Architecture & Acoustique SA, Energestion SA, B. Ott et C. Uldry Sàrl
Année de construction: 1949-1950
2019 - 2019

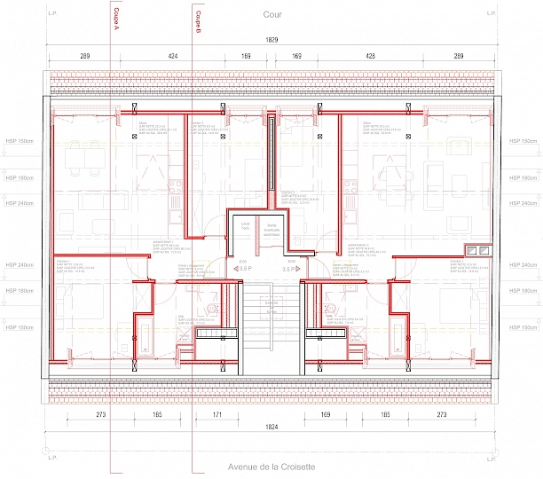
Aménagement des combles
Ce projet consiste en la réalisation de deux logements traversants de 4 pièces dans les combles au 5ème étage d'un bâtiment construit en 1949. La charpente, en excellent état, sera entièrement conservée. L'aménagement se veut rationelle, les chambres sont desservies directement par l'espace de vie, minimisant l'espace hall au profit de la cuisine-séjour. Les chambres proposent plusieurs orientations. Les espaces de séjour sont eux orientés à l'est, côté cour avec une vue dégagée.
L'enveloppe thermique pour les locaux aménagés dans les combles a été conçue selon un standard de haute performance énergétique, avec des matériaux de grande qualité et répondant aux principes de mise en oeuvre dans les constructions anciennes (matériaux à haute diffusion de vapeur d'eau).
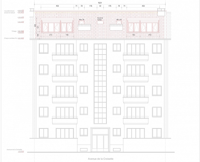
Suite à l'opération réalisée sur le projet pilote de Beaumont, la reflexion sur le dispositif de lucarnes est de nouveau proposé ici. Cette solution permet d'attenuer les effets négatifs induits par l'actuelle loi sur les lucarnes. Cette forme de lucarne permet d'obtenir une bonne intégration architecturale et incidemment offre la possibilité d'intégrer des panneaux photovolaïques permettant d'alimenter les ballons thermodynamiques de production d'eau chaude sanitaire de l'immeuble. Ce concept permet également d'éviter de nombreux percements de la couverture en tuile pour les ouvertures diverses et multiples nécessaires pour éclairer les locaux et impliquant la pose de panneaux solaires en rive de toiture ou en dessous du faîte. Ayant un meilleur accès à la lumière, les panneaux groupés et posés sur les terrassons des lucarnes deviennent par conséquent plus performants.
A ce propos, les toitures des deux lucarnes proposées sont inspirées de celles équipant les "cabinotiers". Leurs dimensions permettent la pose de panneaux solaires sans qu'ils ne soient visibles depuis la rue, laissant de vastes pans de toiture recouverts de tuiles.

Provenance photos et plans Atelier Féroé








