Fonction cinéma
Projet: Transformation de la salle de cinéma
Maître de l'ouvrage: Fonction cinéma
Architectes associés: D. Liengme - arch. IAUG, Féroé Architectes - C. Foehr - arch. EAUG
2008
Constat pour l’étude
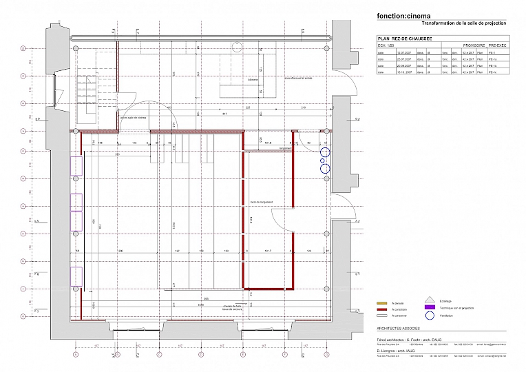
Ce projet se base sur le constat que la salle de projection est actuellement peu profonde et que le dispositif de sièges sur un plan horizontal n’est pas adéquat avec la configuration d’une salle de cinéma.
La présence d’une cabine de projection disposée au fond de la salle rend impossible la mise en place de praticables ou de gradins compte tenu de la faible hauteur exploitable en fond de salle.
Cette configuration implique le positionnement d’un écran à une hauteur relativement élevée, il en résulte un inconfort pour le spectateur.
Principes de base et éléments du projet
Rotation de la salle de 90° par rapport à la cabine de projection située sur la mezzanine. Cette rotation permet d’augmenter la profondeur de la salle et de trouver des proportions plus adéquates.
Insertion d’un dispositif de gradins pour un meilleur confort visuel et mise en relation du secteur des fauteuils avec la mezzanine via une coursive.
Modification de la cabine existante et adjonction d’une coursive et d’un petit local de montage.
Salle de projection équipée de 53 fauteuils fixes + 9 places assises amovibles disposées sur un premier gradin escamotable. Capacité totale de la salle de 62 places.
Fauteuils 55 x 75 cm, gradins 100 cm.










